トップページへ戻る       ものに関わってのメニューへ戻る


県産木材ディスプレイパネルの製作

自分の所属する教科教育部では,毎年年末に研修会を行っている。昨年度は陶芸だったが,今年は自分が企画する番になったので,「県産木材ディスプレイパネルの製作」と題して行った。

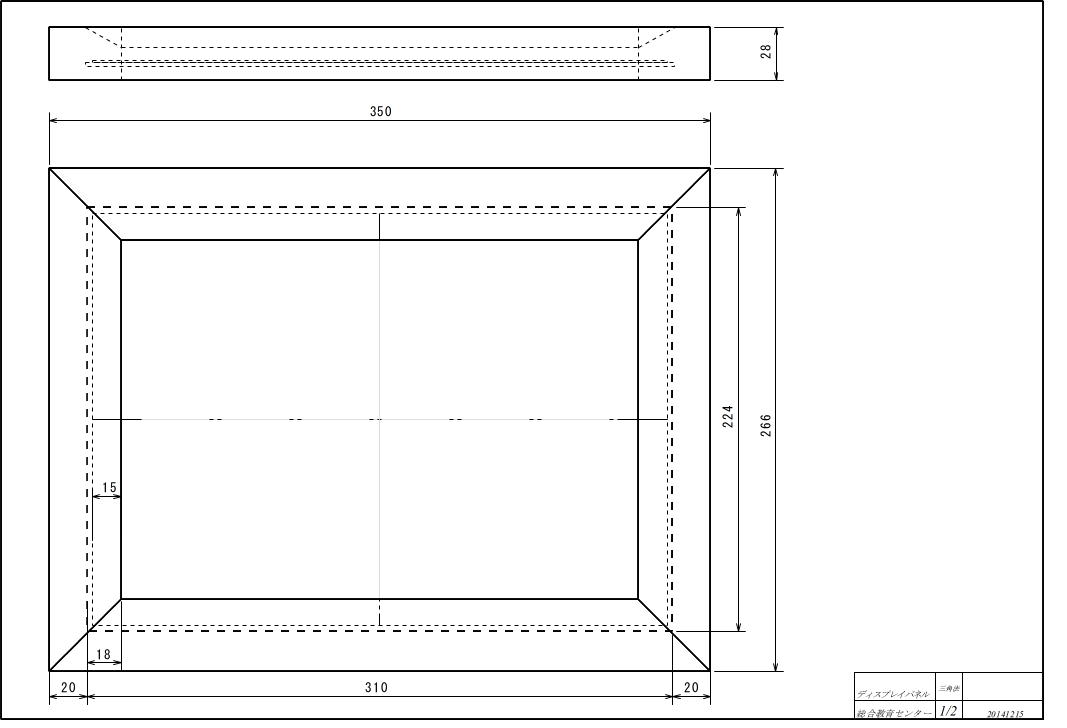
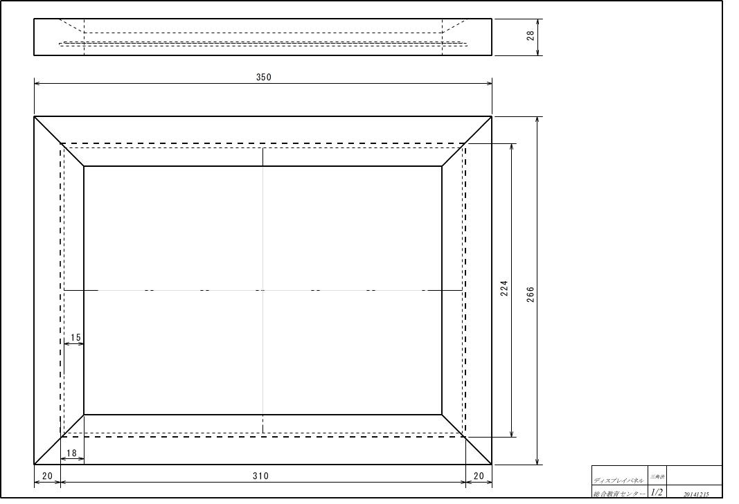
設計図(↑クリックすると大きくなります) PDFはこちら  花子データこちら


つくったのはこんな形の額縁。横にスリットが入っていて,A4の紙がちょうど入って収まる。
パワーポイントで1枚のシートをつくって印刷すれば,それがちょうど中身になる。


ここからは,試作と材料準備


額縁の枠になる材料加工。斜めにカットするようにジグを製作。材料は県産のスギ材。

断面はこんな感じ。(製作時のボンドを塗布した画像しかなかった)

できるだけ加工時間を少なくするために,「留め」の部分も機械で切断。
マイタゲージを45度にして長さを合わせて量産する。


合板を入れる溝を2段につくって,上側の隙間は紙(またはラミネート加工後のA4紙)が入るようにした。


短い辺にベルトソーで切り込みを入れて,紙が入る口にした。片側は切り抜けてしまうがまあ簡単にできるように。

一度仮組をして,ボンドを塗る範囲に印を付けて組み立て。

ボンドで貼り付けた後,輪ゴムで圧着する。

組み立て時は,紙を入れる溝に「くさび」を入れること,スコヤで確認することを伝える。(みな木工製作の経験があまりないので)


下側に圧着しないと,紙がちゃんと滑り込まない。はみ出たボンドは濡れた布で拭き取る。
(このあたりも,丁寧に写真で紹介した)

磨きと塗装の説明写真。



ここからは当日の写真。
受講者?は全員仲間の主事なので,普段とはちょっと感じが違う
説明用のプレゼンテーションもつくった。




プレゼンデータ(マイクロソフト パワーポイント)はこちら



そこそこ満足頂いたようでよかった。





トップページへ戻る       ものに関わってのメニューへ戻る